XVIII Century Half-Timbered Dwelling House (renovation project)
The building is located in Gdansk, in a street that used to run parallel to the Radunia river channel.
According to historical data, the house was built at the turn of the 18th and 19th centuries.
At present, it is the only preserved building from the frontage of the houses of the city poor by the Radunia channel. It is a historic building entered into the register of monuments under the number 659 by the decision of the Department of Culture WKZ.
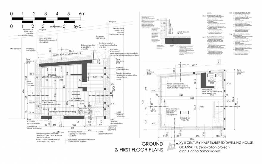
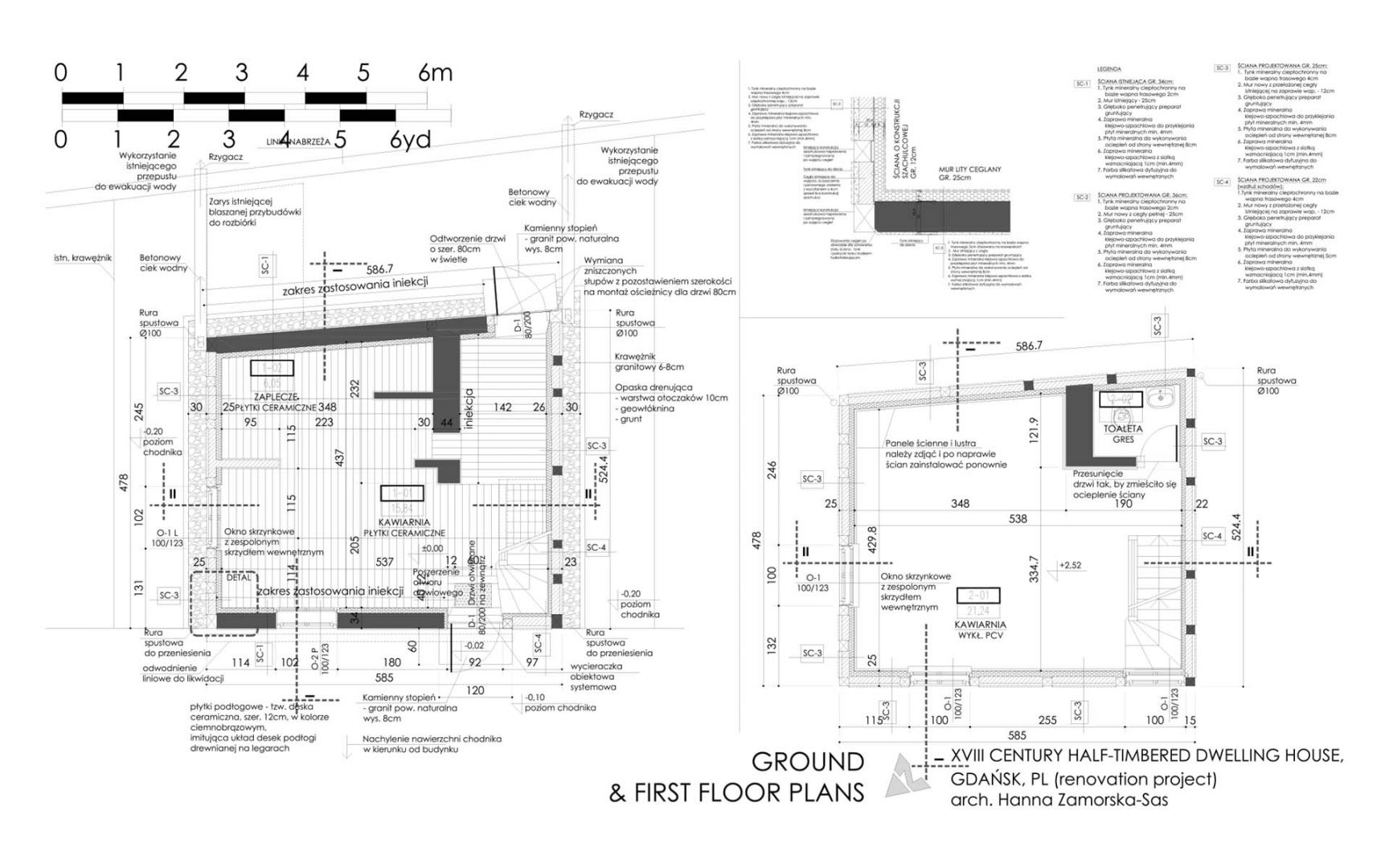
The wooden elements of the half-timbered structure were damaged due to their long-term exposure to the destructive effect of rainwater with improper drainage.
Box windows, leaky and dilapidated, as well as the main door of the front elevation, needed to be replaced to meet the building's thermal protection requirements.
First of all, it was necessary to take comprehensive measures to eliminate or significantly reduce the impact of factors having a destructive influence on the historic substance of the building, to restore the proper and safe technical condition of the building by replacing and repairing damaged elements of the wooden structure and protecting the house from further deterioration.
At the same time, the best possible conditions for the use of the building had to be ensured by providing good thermal comfort. It was necessary to properly perform thermal insulation of walls, the floor on the ground, and the roof slope, to replace the leaky window and door woodwork complying with the conditions of thermal protection of the building.
Only the internal thermal insulation was possible by using one complete system of such insulation consisting of compatible components.
| Location | Gdańsk, Poland |
| Year | 2018 |
| Total area | 88.74 m2 |
| Built-up area | 29.58 m2 |
| Plot area | 153.34 m2 |
| Cubature | 183.10 m3 |



