Elementary School (extension)
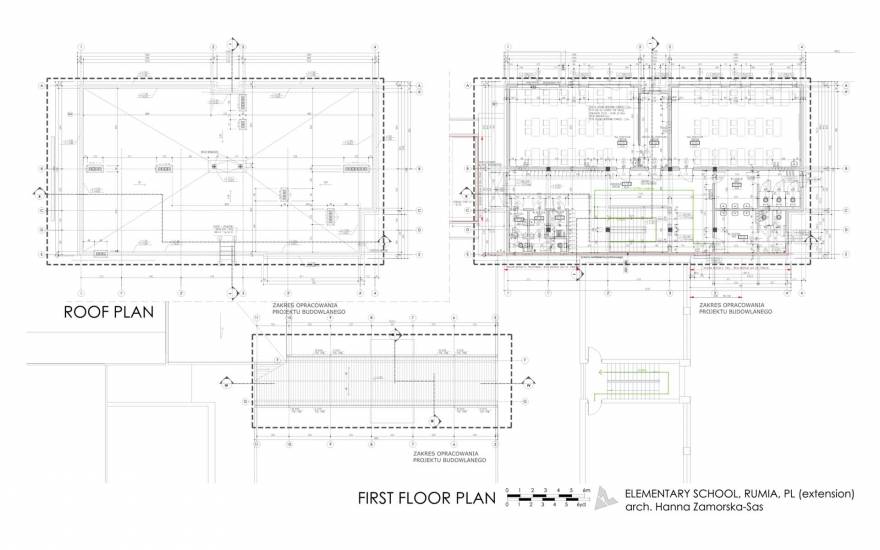
The subject of the study was the project to extend the school building with a two-story block with 4 classrooms (2 rooms on the ground floor and 2 rooms on the first floor) and a one-story glazed connector between the two opposite wings of the school.
A two-story block with classrooms, plus bathrooms and ancillary rooms, and its staircase will be connected on the ground floor with a corridor to the neighboring wing of the school.
The designed part with classrooms is an extension of the existing building and refers to it by its height, flat roof, and plastered elevation.
The designed glazed connector allows visual contact between the two parts of the divided courtyard and, thanks to its light form, does not interfere much with the appearance of this part of the school.
The proposed addition will be adjacent to the southwest corner of the existing school building.
The area around the added part will be leveled and grassed over, with a gravel band provided between the building walls and the lawn. Due to fire regulations, an extension of the existing fire access is designed along the north-eastern elevation of the building.
| Location | Rumia, Poland |
| Year | Under construction |
| Design cooperation | architect Małgorzata Wójcik |
| Total area | 691.97 m2 |
| Built-up area | 379.43 m2 |
| Plot area | 15,216.00 m2 |
| Cubature | 2,214.30 m3 |



