Estate of Single-Family Terraced Houses
The project included the construction of nine terraced single-family houses, construction of the traffic system with pedestrian areas and roadways, construction of the technical infrastructure (water and sewage networks, stormwater drainage, cable routes, and telecommunications), demolition of an existing residential building.
The main axis of the estate is the internal roads along which, on the southern side, three complexes of terraced houses have been designed. From this road, three pedestrian areas and roadways diverge in the northerly direction ending with a plaza for car turning. Along with them, two residential complexes were located on each side.
High landscaping has been designed for the area occupied by the retention and infiltration boxes, creating a green oasis for the housing estate. Low greenery in the form of lawns and low plantings appears along the main estate route, between the pavement on the northern side and the borders of the designed plots. The land on individual properties will be developed with greenery after the buildings are completed, under the supervision of the investor and the designer.
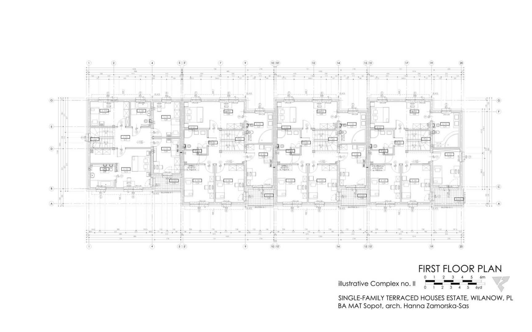
Each of the segments of terraced housing is non-basement, two-story (ground and first floor) with an attic in the space under the gable roof. Roof slope inclination – 30°.
On the ground floor, there is a vestibule, and living room with direct access to the garden, kitchen, toilet, garage, and utility room.
On the first floor, there are single bedrooms, a bathroom, and an en suite double bedroom with a dressing room.
| Location | Wilanów, Poland |
| Year | 2016 |
| Design office | BA MAT, Sopot, Poland |
| Designers | architect Zbigniew Pomaz, architect Hanna Zamorska |
| Estate data | |
| Plot area | 9,731.00 m2 |
| Built-up area | 2,988.05m2 |
| Complex 04 data | |
| Total area | 1,607.37m2 |
| Cubature | 4,215.63m3 |
| Complex 07 data | |
| Total area | 1,862.75m2 |
| Cubature | 5,022.22m3 |



