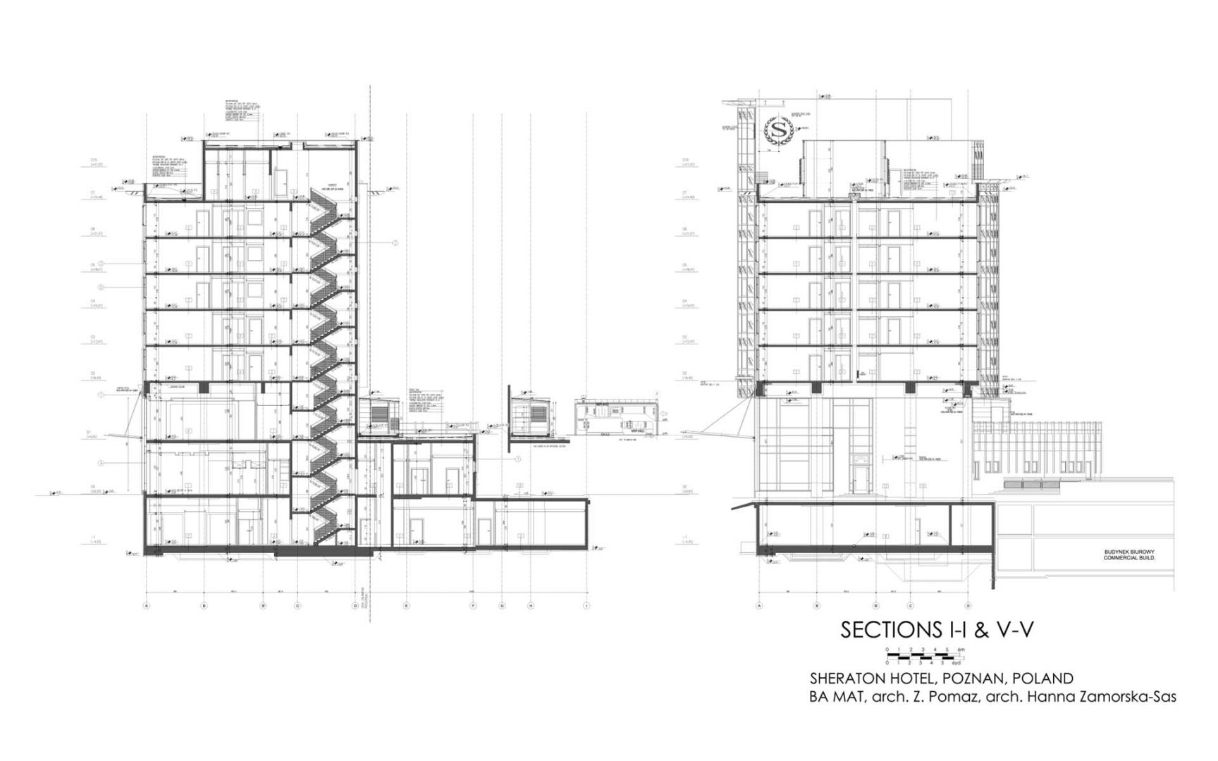
Sheraton Hotel Poznan
The five-story hotel with an international standard of 5 stars with 183 rooms, including 12 suites. The hotel has a ballroom, conference rooms, restaurant, bar and café, and a fitness area with a swimming pool.
| Location | Poznań, Poland |
| Year | 2007 |
| Design office | BA MAT, Sopot, Poland |
| Designers | architect Zbigniew Pomaz, leading architect Hanna Zamorska |
| Interior designer | Eric Egan, Milan |
| Developer | NDI SA, Sopot |
| Total area | 14,000.00 m2 |
| Cubature | 52,500.00 m3 |



