Single-Family House (rebuilding)
The project included rebuilding a single-family residential house in Sopot, together with the reconstruction of the internal gas installation.
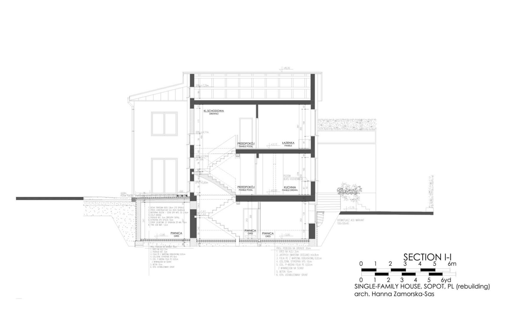
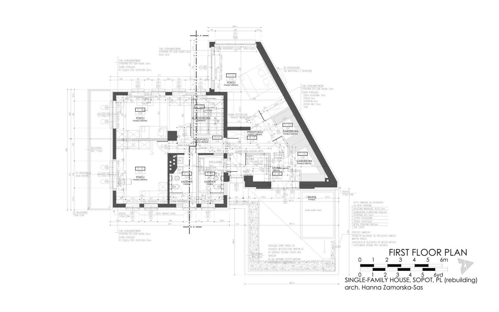
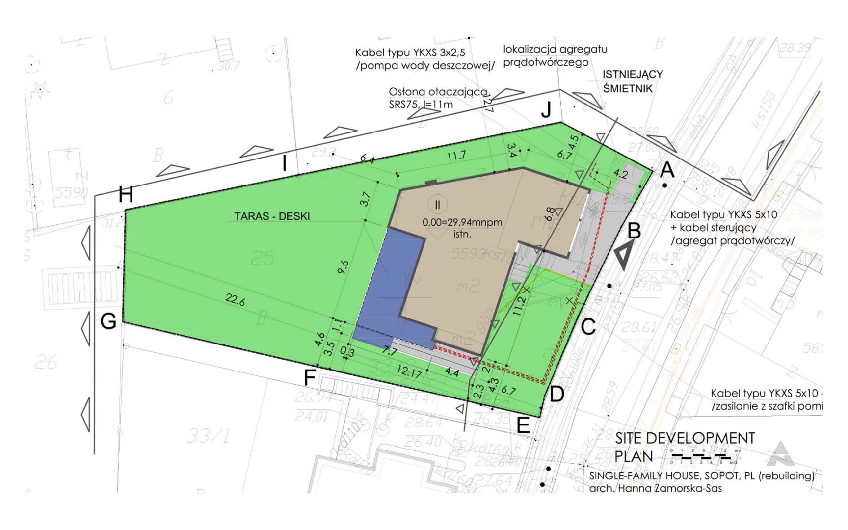
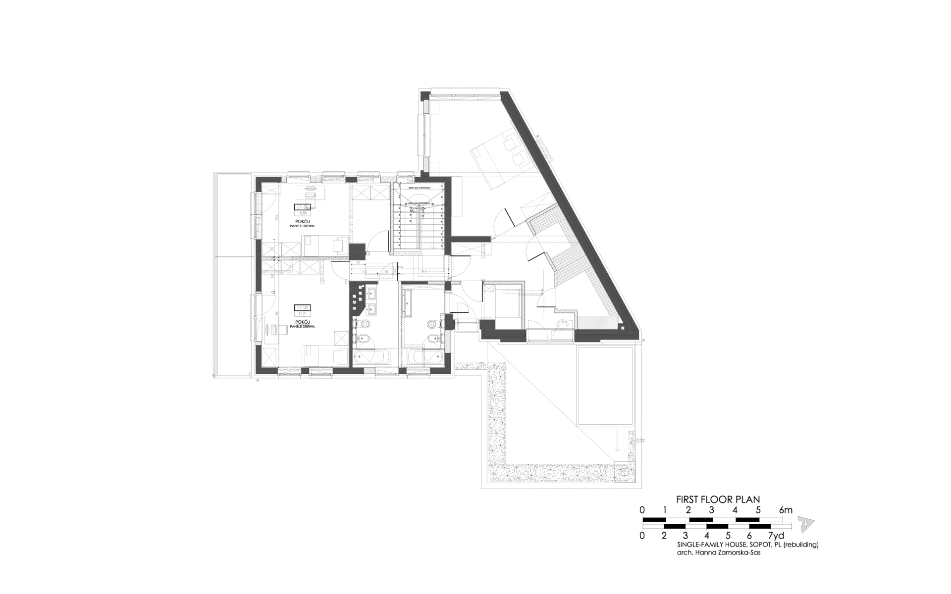
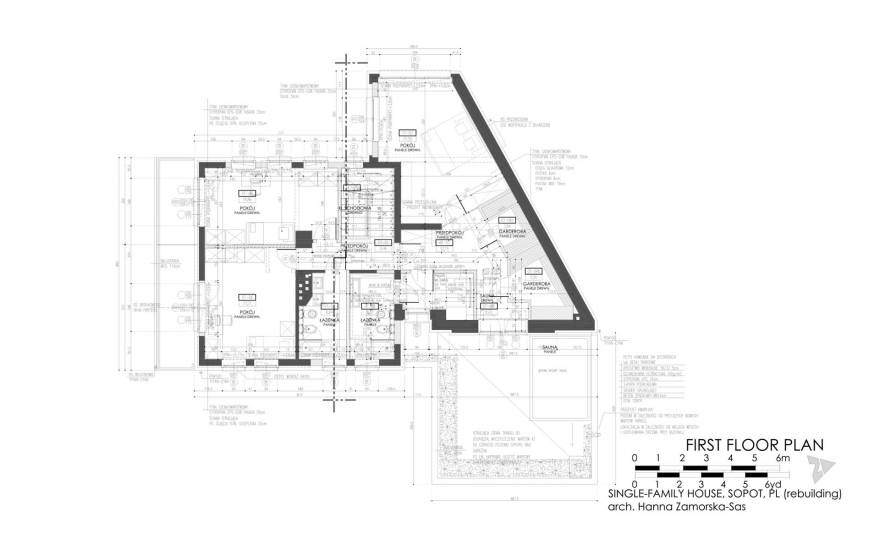
The building is two-story, with a partial basement and an in-built garage.
The original building was constructed in two stages: in the late 1950s, on a square plan, with a basement. Then, in the 1990s, it was expanded to include an irregularly-planned section.
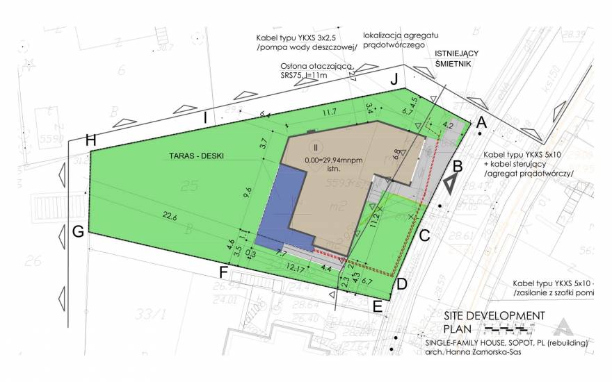
A terrace on a reinforced concrete structure supported on the ground was added to the building in the backyard: terrace floor – wooden planks.
The rebuilding of the internal staircase and extension of the basement towards the garden reached the contour of the existing terrace without changing the footprint.
Scope of the study: reconstruction of the ground and first-floor interiors, alteration of elevation (change of number and location of window frames, additional balcony), change of roofing material from metal tile to flat standing seam metal sheet.
| Location | Sopot, Poland |
| Year | 2020 |
| Total area | 490.74 m2 |
| Built-up area | 186.72 m2 |
| Plot area | 848.00 m2 |
| Cubature | 1,589.92 m3 |



