Water Treatment Plant
The purpose of the project was to build a water treatment plant together with all necessary internal and external installations. The study included design solutions for the following new objects: SUW - the main building of the WWTP, clean water tank, pumping station, wash water separator, transformer station, and garage boxes.
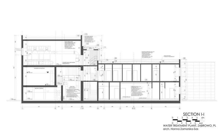
The completed object of the SUW water treatment station consists of the following parts separated from each other:
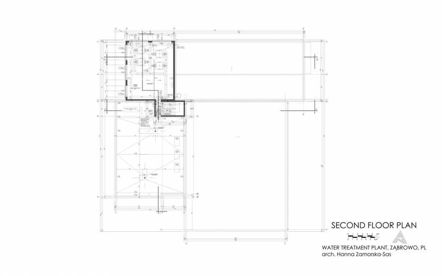
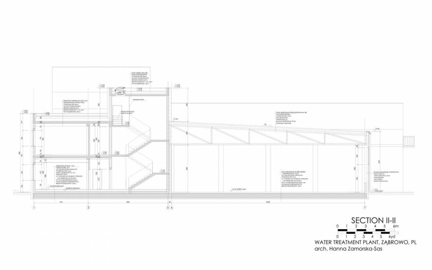
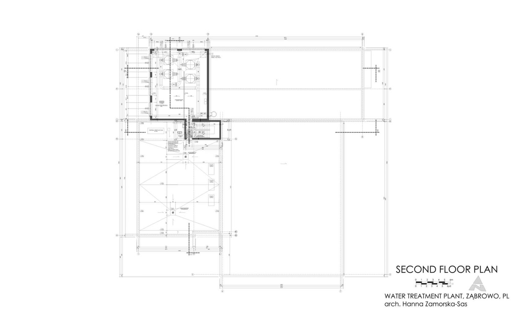
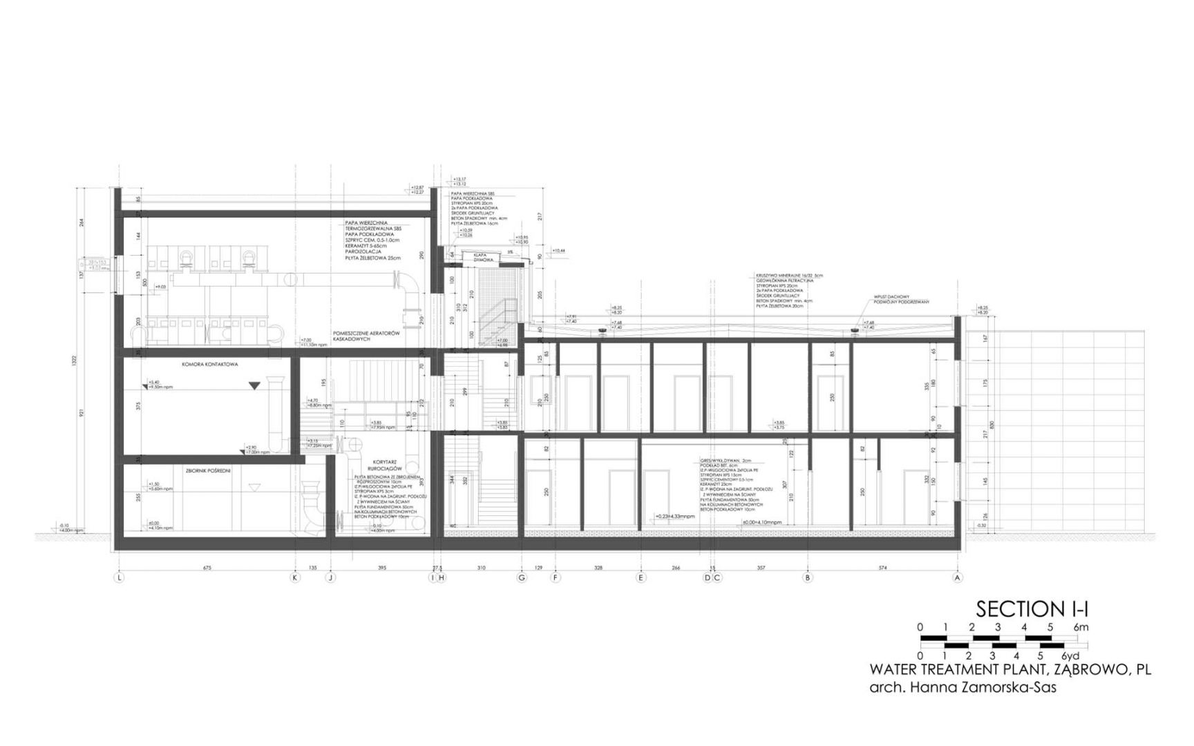
Administration building: a two-story building with office function and laboratory premises. On the ground floor, there are office rooms with sanitary and hygienic facilities, and technical rooms serving the building (heat pumps, watch room, and chlorination room). There is also a connection to the adjacent open filter building on this level. The first floor is occupied entirely by the SUW laboratory. The smoke ventilated using a smoke flap staircase leads to the aerator room of the open filter facility and to the roof exit.
The structure of the building is made of brick with reinforced concrete elements, insulated from the outside and finished with structural plaster in white with grey and blue additives.
Open filter technology building: mainly a one-story building with a 2-story high part where the distribution chambers and the aerator room are located.
The reinforced concrete structure, is insulated from the outside and finished with white structural plaster with grey and blue additives.
Technological hall of closed filters: a single-space technological object of steel hall construction with external walls finished with metal wall panels in various shades of grey and blue.
| Location | Ząbrowo, Poland |
| Year | 2020 |
| Design office | BSiPP Ekometria, Gdansk, Poland |
| Designer | architect Hanna Zamorska-Sas |
| SUW building data | |
| Total area | 2,823.55 m2 |
| Built-up area | 1,333.78 m2 |
| Plot area | 23,571.00 m2 |
| Cubature | 10,715.69 m3 |



