Manufacturing Company Headquarters
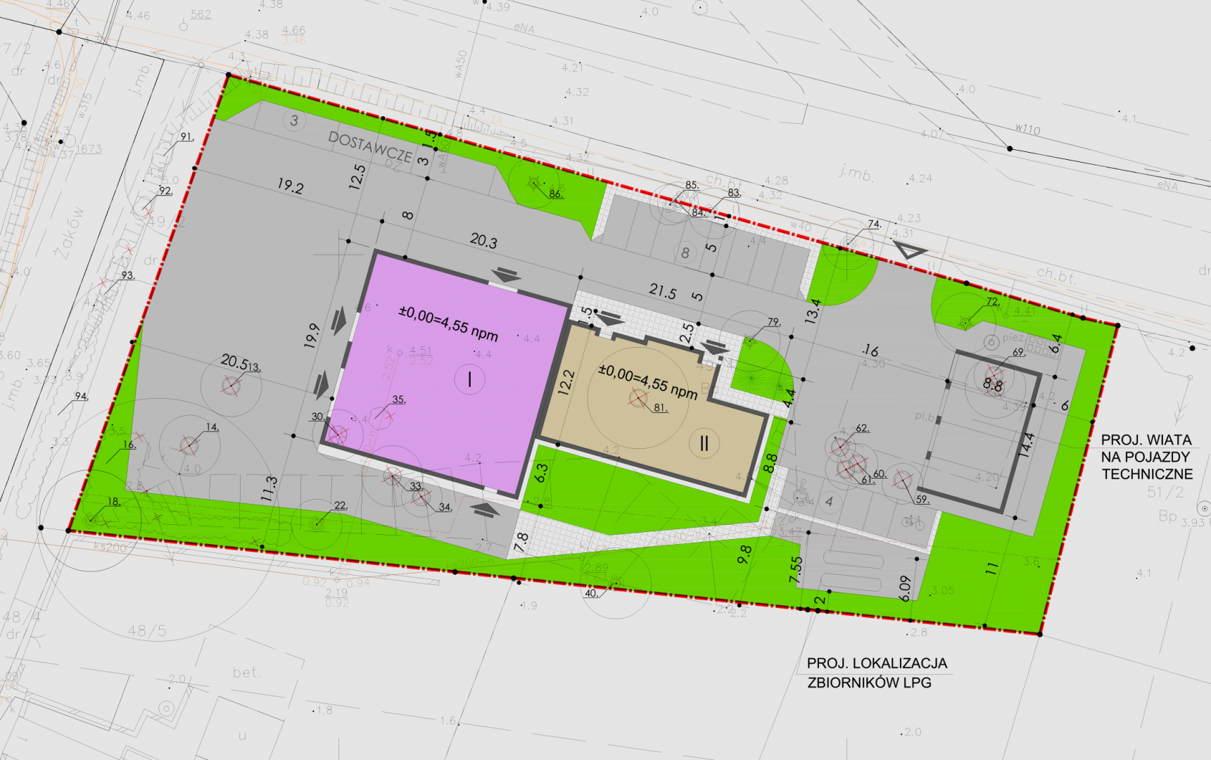
The subject of the study was the construction design of a production and service facility, including carport construction, an internal road system with an exit to a public road, and all external installations.
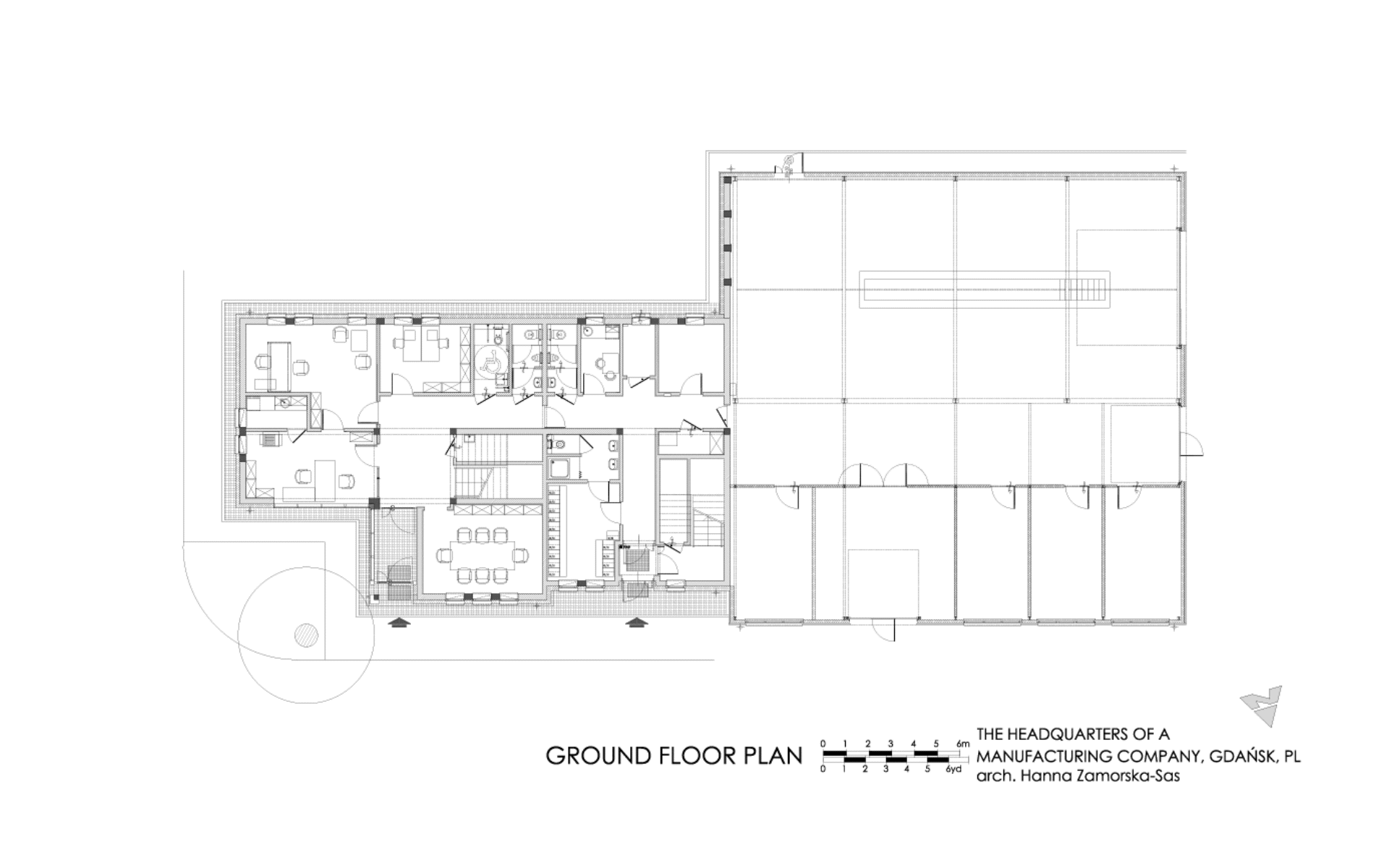
The planned investment will consist of a one-story production and service facility and a 2-story office part, located in the central-southern part of the site.
The internal road layout will ensure good communication to the production building, as well as to the parking spaces located along the plot boundaries. A shelter for technical vehicles will be located in the eastern part.
The designed facility will serve as a production, service, and office activity.
On the ground floor, there is a public area: the secretariat, the president's office, one office room, and a meeting room with sanitary facilities. In the part serving the production hall, there is a cloakroom with a restroom and social and technical rooms. The manufacturing part will contain an assembly hall and five warehouses.
On the first floor, there is the remaining office space and additional business premises which may serve as a residential area integrally connected with the company's activity.
| Location | Gdańsk, Poland |
| Year | Under construction |
| Design office | PP KONAR, Gdansk, Poland |
| Designer | architect Hanna Zamorska-Sas |
| Total area | 1,101.20 m2 |
| Built-up area | 773.99 m2 |
| Plot area | 3,641.44 m2 |
| Cubature | 3,715.14 m3 |



