Elementary School (rebuilding)
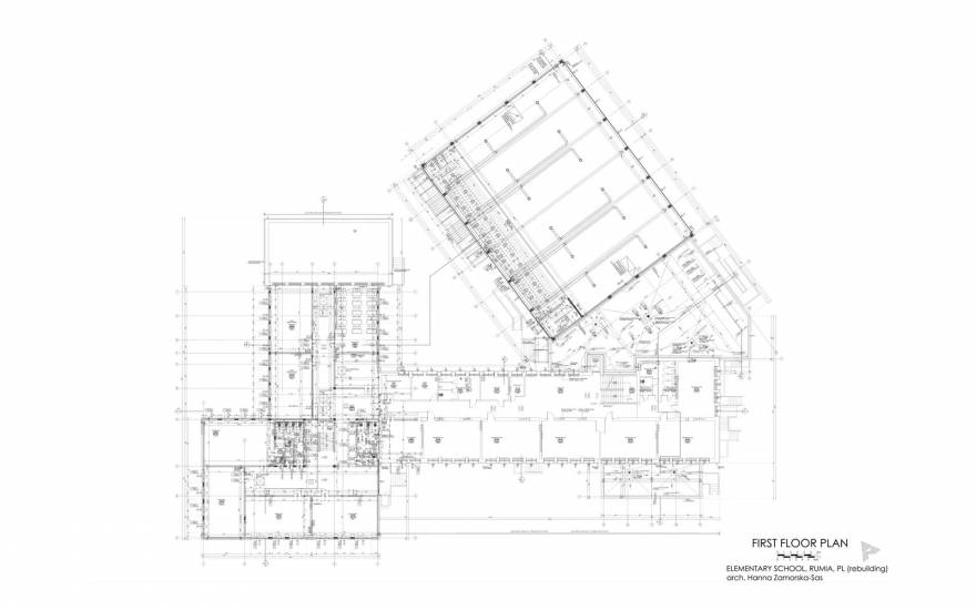
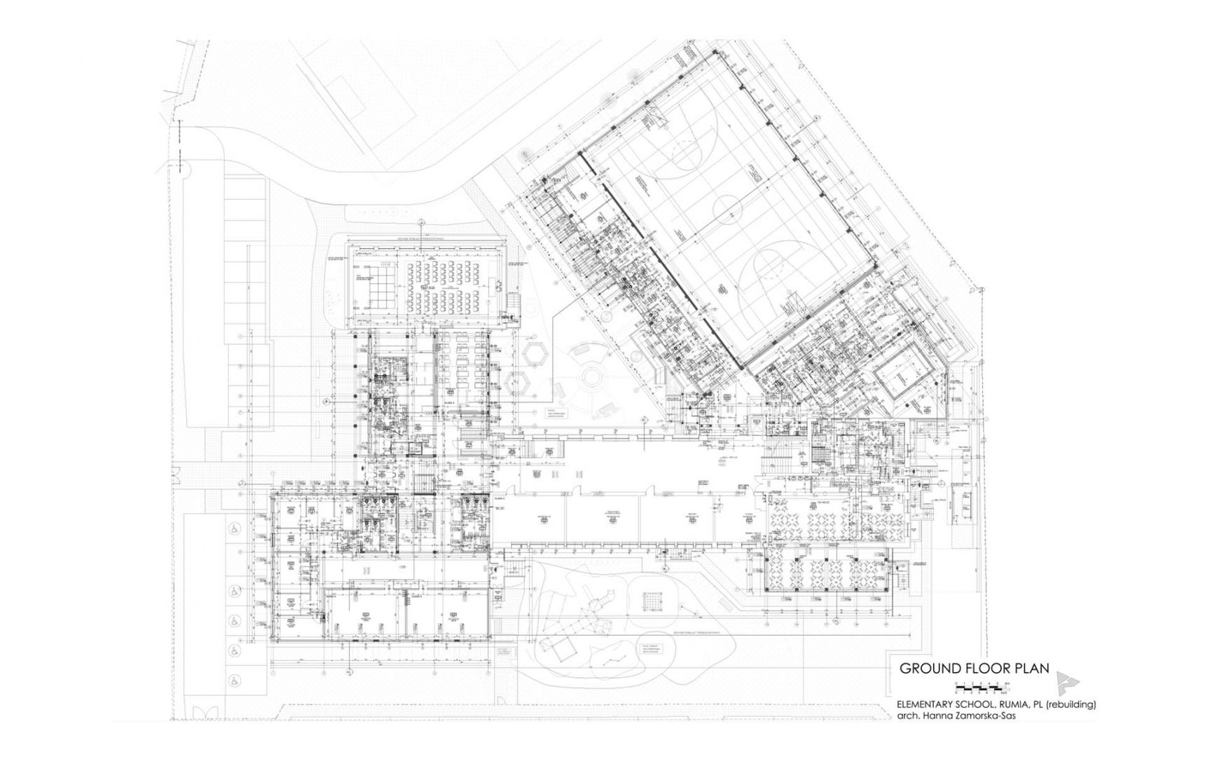
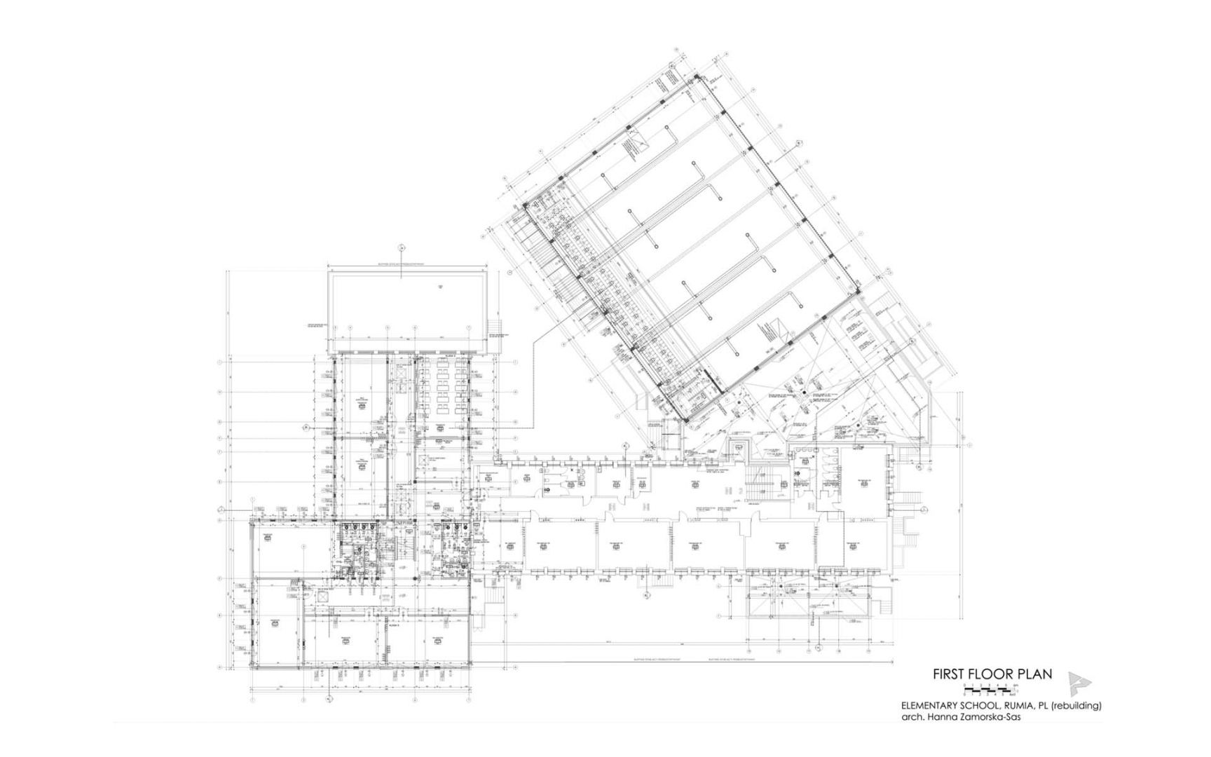
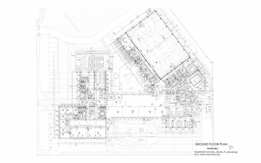
The extension design was intended to create a clear functional layout with a division into teaching and sports zones. The existing main entrance to the building has retained its function, leading to the primary didactic part of the school, extended by a set of new classrooms designed for the youngest pupils, right next to the administrative part of the school. From here, children can go out to a recreational area designed just for them.
In place of the former kitchen, a catering complex was redesigned with sanitary and epidemiological conditions taken into account. The dining room for students was enlarged by a large glazed veranda facing the main street.
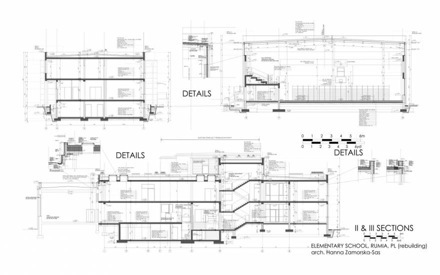
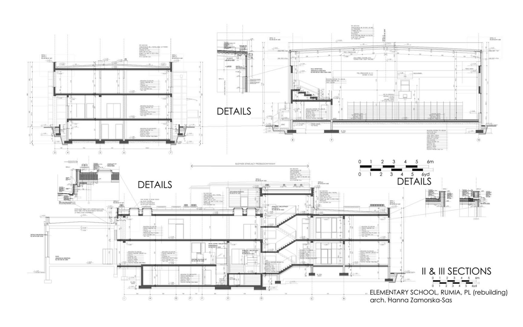
The transition to the new sports complex was designed from the ground floor level as the most natural. A small swimming pool and a gym for up to 12 people can be accessed directly from the locker room and sanitary facilities. A separate zone is the sports hall block with an independent complex of locker rooms and toilets. The auditorium of the sports hall is located on the mezzanine above the changing rooms. The layout of the building allows for separate functioning of the gym block, swimming pool, and rehabilitation office – the project assumes access to them also directly from outside. After entering the sports block, students can go directly to the locker rooms of the pool or sports halls. The designed complex is fully accessible for people with disabilities. At the basement level, technical rooms are to serve as a ventilator room and a place for water treatment installation for the swimming pool.
| Location | Rumia, Poland |
| Year | 2012 |
| Design cooperation | architect Małgorzata Wójcik |
| Total area | 7,803.68 m2 |
| Built-up area | 2,988.05 m2 |
| Plot area | 9,731.0 m2 |
| Cubature | 24,831.47 m3 |



